REFERENZEN

Referenz 1

Neubau 2 Einfamilienhäuser & 1 Villa

Exlusives Wohnen auf 2 Etagen...
Der grosszügige Grundriss mit 5.5 Zimmer bei den EFH und 7.5 Zimmer bei der Villa lassen keine Wünsche offen. Die klare moderne Architektur spricht aussen und innen die gleiche Formenprache. Die zeitgemässen Materialien passen im Einklang zueinander.

more_horiz
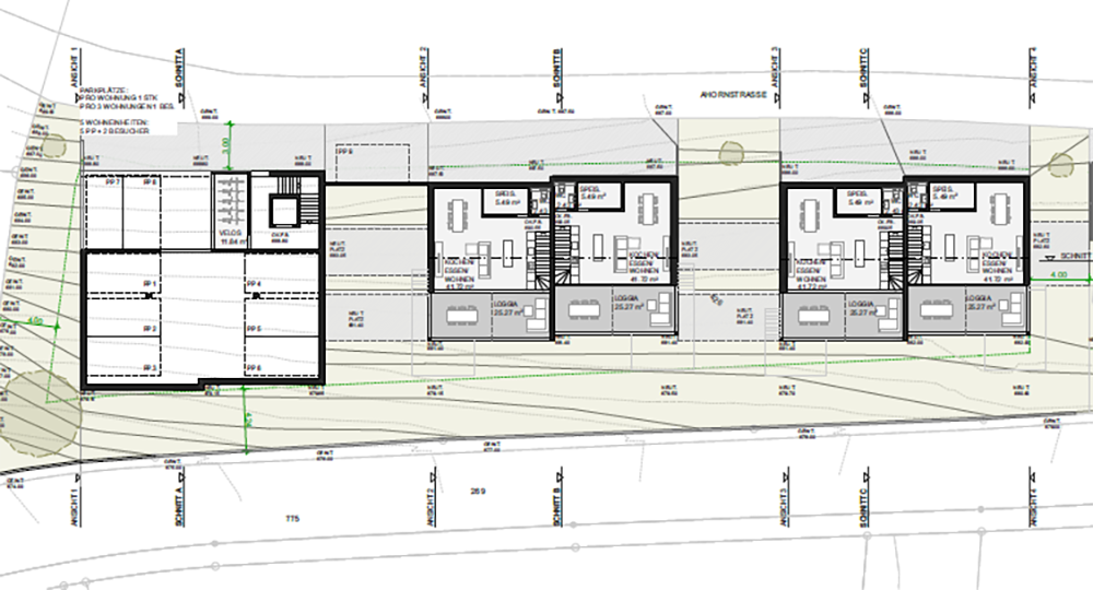
Referenz 2

Neubau MFH & 2 Doppel-EFH

Wohnen mit unverbaubarer Sicht ins Rheintal und in die vorarlberger Berge...
Es werden 1 MFH mit 4 Wohnungen und 4 Doppel-EFH-Haushälften realisiert.
Die verschiedenen Wohnformen sind für Paare ohne Kinder und junge Familien ausgelegt. Die Doppel-Einfamilienhäuser verfügen über ein 

more_horiz
Referenz 3

Neubau MFH mit Gewerbe

Moderne Kleinwohnungen im Dorfkern…
17 Kleinwohnungen und 400m2 Gewerbefläche an zentraler Lage. Vorwiegend sind es 2.5 Zi-Wohnungen mit einem offen gestalteten Grundriss.


more_horiz
Referenz 3

Neubau 3 Terrassenhäuser & Büros

Wohnen mit unverbaubarer Seesicht…
Bauberatunsthemen:
- Handwerkerpfandrecht
- Baustopp > nicht Regelkonforme Bauausführung
- nicht normgerechte Ausführungsdetails

more_horiz
Referenz 3

Neubau Wohnüberbauung "Aurora"

Priveligierte und familienfreundliche Wohnlage…
Die Wohnüberbauung besteht aus 12 Doppel-Einfamilienhäuser und 6 freistehende Einfamilienhäuser. Grossflächige Räume und ein hochwertiger Standard zeichnen den Wohnkomfort des neu entstandenen Quartiers 

more_horiz
Referenz 3

Neubau Einfamilienhaus

Wohnen fernab vom Durchgangsverkehr…
Das individuell auf die erfahrene Bauherrschaft zugeschnittene Einfamilienhaus bietet einen hohen Wohnkomfort. Der Wohntraum zeichnet eine solide Bauweise mit konventionellen Materialien aus.

more_horiz
Referenz 3

Neubau Wohnüberbauung "Hofstättli"

Lebensqualität die mit der Zeit geht…
Die 6 Einfamilien- und 8 Doppelhäuser mit einer durchdachten Raum- und Tragstruktur ermöglicht unterschiedliche Lebensentwürfe unter einem Dach. So ist Wohnen mit der Familie, als Paar oder kombiniertes Wohnen und Arbeiten möglich.

more_horiz